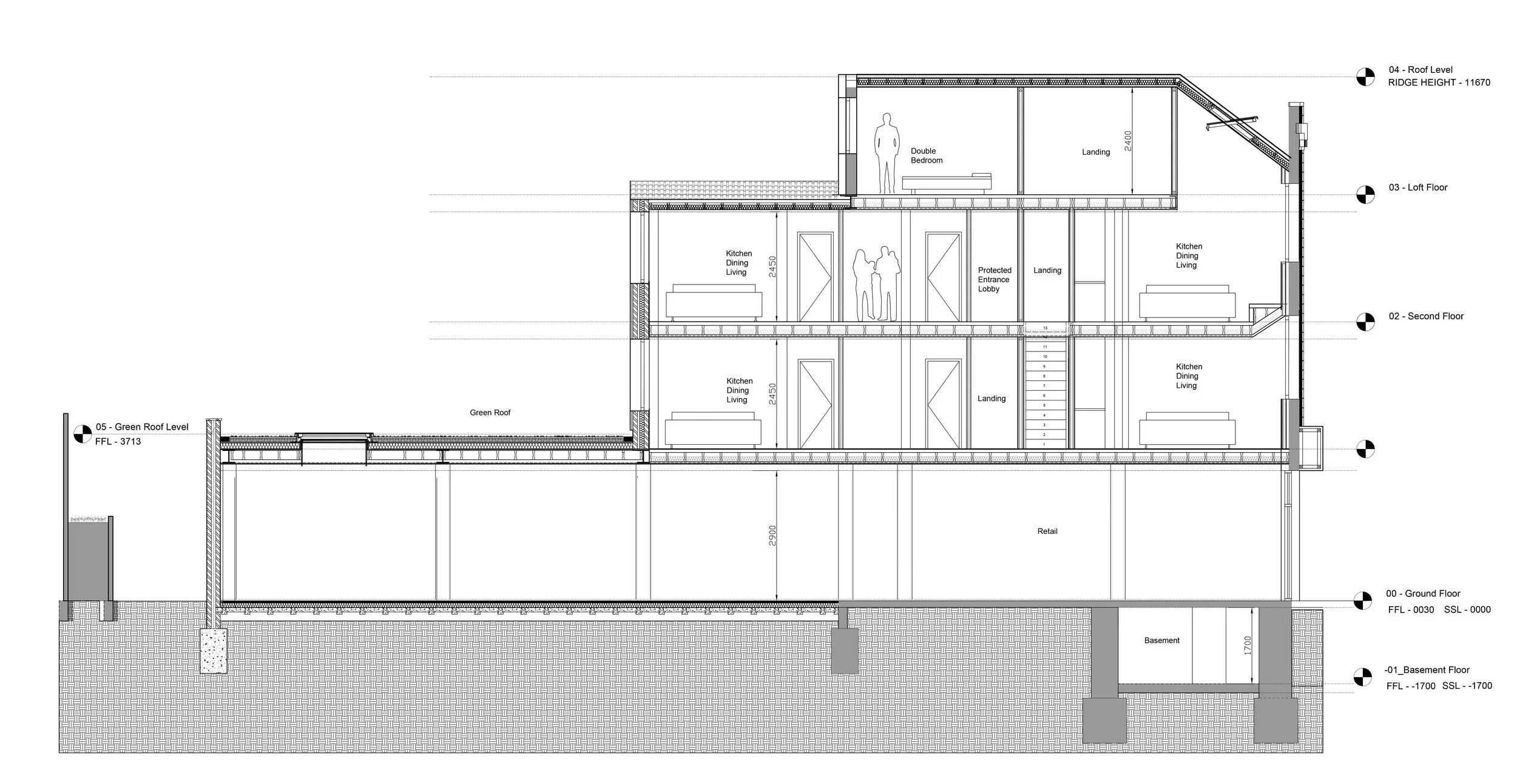
214-216 STAPLETON ROAD

This project is essentially the merging of 2 terrace houses with a double height extension to the rear and roof extension at the top, converting the new increase footprint into 5 generous residential flats. The ground floor retail unit has also been considerably revamped up as part of this scheme.

Previous
Previous

58-62 Belle Vue Road

Next
Next

1A Stanley Park